喷灌

将有压水流喷射到空中形成细小水滴进行喷洒灌溉。喷灌具有省水、省工、省地、保土、保肥等优点,便于实现灌溉机械化和自动化,还可以喷洒化肥、农药等。喷灌对土地平整要求不严格,特别适用于地形复杂,推行沟畦灌比较困难的地区,但耗能较高,且在四级风以上时,难以喷洒均匀。其建设投资在平原地区一般比地面灌溉为高。

世界喷灌始于19世纪末,20世纪50~60年代随着工农业的发展和大型自走式喷灌设备的出现,喷灌面积得以迅速发展。1985年全世界超过2000万公顷,美国和苏联喷灌面积较大,均在70万公顷左右。中国1953年开始在农田中试用喷灌,20世纪70年代中期以后,随着喷灌技术和装备研制水平逐步提高,园艺、经济作物、蔬菜以及部分地区大田作物的喷灌有了较快的发展,80年代初喷灌面积约1000万亩。

图 喷灌系统

由水源、水泵机组、管道系统(干管、支管、竖管)及喷头组成。喷灌系统从获得压力的方式可分为机械加压的机压喷灌系统和利用地形自然落差的自压式喷灌系统。一般将喷灌系统分为①固定式:系统全部设备均固定在一个地块使用,用材多、投资大,但使用操作方便,生产效率高,经济作物区使用较多。

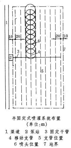
(2)半固定式:干管固定,支管、喷头移动使用(见图)。移动方式有手动和机动,用材及投资均低于固定式,使用比较普遍。

(3)移动式:系统全部设备都可移动使用,设备利用率高、造价低。20世纪70年代末中国生产并开始使用生产效率高的大型自走式喷灌机组,但用量最大的是用人工移动的小型喷灌机组。(见彩图)

甘肃景泰川灌区电动时针式喷灌机,全机运转一周可控制面积约800亩 浙江余姚茶园喷灌 喷头

通过收缩管嘴或孔口将有压水喷射到空中,形成细小水滴进行灌溉的喷洒器。喷头按工作压力高低可分为高压(大于500kPa)、中压(200~500kPa)和低压(小于200kPa)三种。按喷洒特征及结构形式分为固定式和旋转式。固定式喷头又分为折射式、缝隙式及离心式三种。这类喷头无转动部件,结构简单,运行可靠,工作压力低,雾化好,但喷洒范围小,喷灌雨强高,多用于温室、园艺、苗圃或装在行走喷洒的喷灌机上使用。旋转式喷头主要由旋转密封机构、流道和驱动机构组成,按驱动喷体方式又分为反作用式、摇臂式和叶轮式三种。这类喷头喷洒半径大,喷灌强度低,喷洒图形为圆形及扇形,是应用最广的一种喷头。

喷灌技术参数

(1)喷灌强度:即单位时间内喷洒到灌溉土地上的水深(mm/h),要求不大于土壤渗吸速度,避免地表积水和产生径流;

(2)喷灌均匀度:是指喷灌面积上水量分布的均匀性,一般要求在0.8以上;

(3)雾化程度:用喷洒水滴直径的大小衡量,要求控制水滴平均直径在3mm以内。

随着世界能源和水资源日趋紧张,喷灌技术将会进一步发展。低压喷头及低压喷灌系统将得到广泛应用。在喷灌系统中也将更多地采用恒压泵站,以保持管网恒定的工作压力,降低能耗。

参考书目
  1. 华北水利电力学院施钧亮等编:《喷灌设备与喷灌系统规划设计》,水利电力出版社,北京,1979。
  2. C.H.佩尔主编,姚汉源等译:《喷灌》,水利电力出版社,北京,1980。(C.H.Pair,Sprinkler Irrigation,4th ed., Sprinkler Irrigation Association,SilverSpring,Maryland,1975.)

参考文章