[拼音]:Tutanhameng Mu
[外文]:Tomb of Tutankhamen
古埃及第18王朝国王图坦哈蒙(约公元前1361~前1352在位)之墓。位于上埃及底比斯西郊的“王陵之谷”。是已发现的唯一未遭盗掘的古埃及王陵。图坦哈蒙是阿肯那顿王之婿,继位时约9或10岁,继位9年后死于首都底比斯。英国考古学家H.卡特于1922年发现并发掘该墓,1933年发掘完毕。图坦哈蒙墓在考古、历史等方面具有重大价值,随葬品现存埃及开罗博物馆。
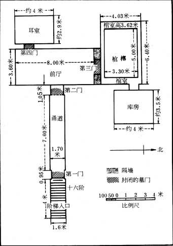
图坦哈蒙墓建在第20王朝拉美西斯六世的陵墓之下。规模不大,形式亦较简易。总体由甬道、前厅、棺室、耳室和库房组成。各室中以前厅最大,面积为8.5米×4 米。棺室内有壁画,壁画以宗教活动和埋葬场面为主题。北墙上绘有国王及其灵魂站在阴府之神奥西里斯(又译俄赛里斯)面前,以及将国王遗体制成木乃伊的有关仪式。南壁描绘图坦哈蒙站在奥西里斯之妻、送葬女神伊西丝和墓地守护神安努毕斯之间。棺室内有几乎塞满棺室的共分 4层的木制圣柜或称外椁。其内为整块石英岩雕刻而成的内椁,长2.75米,宽1.5米,高1.5米,内有棺三重,第一、二重为人形贴金木棺,最内层为纯金人形棺,长1.85米,由厚2.5~3.5毫米的黄金片锤打而成,重60公斤以上。内装图坦哈蒙的木乃伊,木乃伊头部罩以形象逼真的纯金面罩。(见彩图)
除棺室外,其他各室布满千数以上的家具、雕像、武器、王杖、包金战车等随葬品。家具主要是大小不一的贴金或镶嵌的箱柜、匣盒等。箱柜长约80厘米,内装衣服、亚麻布、珠宝、公文书等。最引人注目的是一件镶嵌各色玻璃、宝石并包金的木制狮腿“宝座”。宝座的二条前腿顶端置金狮,两个扶手由有翼的蛇形女神支承。女神头戴国王双冠,并刻有国王的前名图坦哈吞,但是宝座的其他部分所用名字则为图坦哈蒙,这一变化在考古和历史研究中具有重大意义。宝座的贴金靠背上则刻画国王坐在宝座上,王后正准备为他化妆的图像。