[拼音]:geshengjian
[外文]:acoustic booth
在噪声强烈的车间内建造的有良好隔声性能的小房间,以供工作人员在其中操作或观察、控制车间内各部分工作之用。良好的隔声间,能使其中的工作人员免受听力损害,改善精神状态,得到舒适的工作条件,从而提高劳动生产率。
隔声间的位置,应该能使其中的工作人员看到整个车间的生产情况。为此,可将隔声间设置在车间的角落或紧靠车间的一面墙,也可以安排在车间的中部,但须顾及隔声间内的人员出入方便,不影响车间内加工材料的流通,以及便于供电和通风。
隔声间的大小以能符合工作需要的最小空间为宜。隔声间的墙体和顶棚材料可采用木板、砖料、混凝土预制板或薄金属板等。
隔声间的内表面,应覆以吸声系数高的材料作为吸声饰面。常用的吸声材料是超细玻璃棉或矿棉 (10厘米厚),外面包以稀疏的薄玻璃布(0.1毫米厚)或塑料薄膜(0.035毫米厚),而用穿孔的薄金属板或薄塑料板覆面(穿孔率可以采取20~30%),也可用双层塑料窗纱覆面。
隔声间门的面积应尽量小些,密封应尽量好些。可以采用橡皮条、毡条等作为密封材料。如果单层窗的隔声量不足,可用双层窗。例如,用3毫米厚玻璃装配的单层窗,其隔声能力可达25分贝;而用同样厚的玻璃装配的双层窗,在两片玻璃的间距为10厘米时,隔声量约达36分贝;间距20厘米时为40分贝。再如,镶有6毫米厚玻璃的单层窗,隔声量可达27分贝;如果用同样厚的两片玻璃装配成双层窗,在玻璃间距为2.5厘米时,隔声量可达32分贝;间距10厘米时为38分贝;间距20厘米时为44分贝。
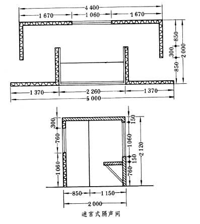
隔声间的形式应根据需要而定。常用的有封闭式、三边式和迷宫式(如图)。封闭式隔声间的墙体和顶棚可用木板(面密度为7.3千克/米2),内部吸声饰面所用的材料是超细玻璃棉(容量20千克/米3,厚10厘米),外包稀疏的薄玻璃布(厚0.1毫米),用穿孔金属板(穿孔率20~30%)覆面。此种隔声间在不设门扇的情况下,能隔声10分贝,如果加设门扇,隔声能力可达20~30分贝。三边式和迷宫式隔声间的内表面处理方式和封闭式相同,但三边式应有最小的深度(1.50米)和最小的宽度(视需要而定)。迷宫式隔声间的特点是入口曲折,能吸收更多的透入的噪声。由于它不设门扇,工作人员出入方便。
另外,还有供噪声很大的机器或机组(如水泵、柴油发动机等)用的隔声间,它实质上是一种隔声箱。为了提高隔声能力,这种隔声间可采用双层木板做成围护结构,并在两层木板之间填充耐火的松散材料如矿棉、石棉等。