气源部分
一、基本配置方案流程图:

①无油空压机②储气罐③前过滤器④干燥器⑤后过滤器⑥精过滤器
二、配置说明
两台或多台空压机合用一套后处理设备时,可根据实际用气量来选配后处理设备的规格,如果其中有的空压机仅作为备机而不同时使用,则按最大使用功率选配后处理设备。当压缩空气输出进入储气罐后,先经过(P级)前过滤器再进入干燥器去除压缩空气中的水分,然后再通过(A级)后过滤器时,压缩空气的品质达:含尘粒径≤1um、含油量≤0.1ppm。如果再配装(F级)精过滤器,压缩空气的品质可达:含尘粒径≤0.01um、含油量≤0.01ppm。
空压机技术参数(0.7kg)

储气罐技术参数

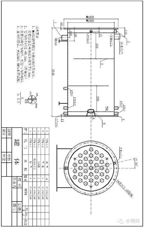
储气罐按照国家劳动总局颁发的《压力容器安全监察规程和钢制焊接压力容器技术条件GB150-89标准》进行制造,并提供试验报告、产品质量证明书。随罐附带安全阀、排污阀和压力表。

干燥器技术参数及零部件情况


●冷冻式干燥器零部件情况
◆制冷压缩机(法国TECUMSEH)热气旁通阀(德国EGELHOF)
◆干燥过滤器(美国ALCO)热气膨胀阀(美国)
◆压力开关(台湾HF)电磁阀(意大利)
◆自动排水阀(SMC)保温材料(美国)
◆风机及冷却器(国产)结构件(国产)
过滤器技术参数及零部件情况


●过滤器零部件情况
◆滤芯(意大利独家技术-百褶裙式)
◆外壳(国产)
◆压差表(EVERYC)
◆自动排污阀(SMC)
无热再生吸附式干燥机技术参数
无热再生吸附式压缩空气干燥机是利用干燥剂材料本身所特有的微孔,根据毛细作用吸附空气中的水分子,同时根据卸压脱附和吸附余热升温来脱去所吸附的水份。设备一般制成双筒形式,在程序控制器的控制下,两筒交替工作,一筒吸附水分,另一筒解吸再生,连续循环地工作。
具有稳定一致的出气压力和露点
A、合理的筒体设计,保证了压缩空气与干燥剂的接触时间,满足成品气的露点要求。
B、30%的干燥剂余量,用于补偿干燥剂的自然老化,确保干燥
C、大型扩散器,确保气流均匀通过干燥剂层,消除沟流现象。
再生气量损耗小于12%。(切换周期10min)-70°C(切换周期4min)
A、卓越的机筒设计,保存95%的吸附热量,储存的热量用于增加再生阶段的再生气温度,提高设备的解吸能力,使得再生更彻底。
B、干燥和再生采用反向对流方案,湿空气流过干的吸附剂时效果最佳。
C、可根据干燥机的运行负载需求调节再生气用量。
干燥剂使用寿命长
A、合适的机筒尺寸,使气体通过干燥剂层的流速和时间保持最佳状态,充分发挥干燥剂的性能。
B、合理的系统配置,在气流进入机筒前,经高效除油处理即时清除气流中内含油份与重污染物,避免干燥剂层受污染。
设备采用了新颖的气功薄膜切断阀和先进可靠的进口微机程序控制器,具有自动计时、自动切换工作的特点。工作稳定可靠,不受电网,电压,电场等影响。
无需基础安装,安装简便。
科学合理的切换时间设计保证出口气压稳定无波动。

臭氧发生器部分技术方案
一、技术特点及优势
臭氧发生器产生臭氧的核心是臭氧发生器的电源,臭氧发生器的变压器是电源和放电管的桥梁,我们采用的是国际先进的高频专利电源,钛金搪瓷放电体技术,集高压电极与介质于一体。
采用基材预烧脱碳、加工找直、高压喷钛粉、底铀喷涂烧结然后面铀喷涂烧结,磨床加工后通过超声波测厚仪检查、喷涂固定点,在烧结出炉后通过2万伏的高电压测试检查
钛金搪瓷材料放电介质的机械强度和耐热强度上比玻璃放电体有更高的强度,不锈钢管304材质作为放电体的外电极。臭氧放电体的电气参数和机械强度是影响臭氧发生效率、可靠性和灵活性主要因数。
放电室图

-气源入口和分布室;
-高压分配安装在气源入口分布室,为臭氧发生单元提供电能;
-发生器罐体,臭氧放电体安装在里面;
-臭氧出口收集室;
-冷却水,在发生器罐体和通过两端已焊接的密封的不锈钢管板隔离,内层有折流板保证循环水的均匀散热。
-冷却输入口和出口管道;
-放电体安装在不锈钢管内;
-罐体作为接地电极;
-每不锈钢管内串联的臭氧放电体组成称为的“放电单元”;
每组“放电单元”带有独立的熔断器,出现故障时该“放电单元”的熔断器断开,不影响整机的稳定运行,减少停机时间。
臭氧发生器组装图
放电体数量在设计时留有充足的余量,即使由于不可预见故障放电单元损坏(最高7%),臭氧系统还可以达到全负荷工作,臭氧产量不会低于设计产量,这样可以保证臭氧系统能继续正常运行直到计划的维护时间再检修。
部分不能生产臭氧的能量转化为热能释放,必须通过冷却水腔流过足够流量的冷却水带走。领峰臭氧发生器运行在3600V电压和1000HZ频率条件下。该参数的选择不仅仅是为了提供优化的条件高效发生臭氧,而且是由于安全可靠的设计思路。3600V的放电电压大大减少了电力冲击,保证了放电体的使用寿命更长。
发生器设计为连续工作模式,每一台预先安装好了相关的仪表和阀门。
臭氧发生器是完全一体化安装的,管道,阀门、仪表和电缆安装在发生器上,而且全套系统将提前完成全部测试。

放电体
双钛金臭氧发生器放电管系列

采用进口工艺的特殊钢板钛粉喷砂制作放电基体(钢板含钛金属成分)臭氧发生器放电管,强度更高、耐高温、抗腐蚀。
工艺追求零缺陷采用意大利进口的全自动高速焊接机来进行放电基体的焊接,完全融熔,合二为一,保证放电基体牢固可靠,绝无虚焊,性能稳定。
运用国际领先的干粉静电喷涂工艺,对放电基体先用具有保护作用的高压酸性溶液清洗,然后利用静电吸附原理使基体壁表面带静电,让sio2粉均匀地吸附在表面,再用870℃高温烧结,避免漏涂、少涂。
凝聚MTS特殊工艺的高级sio2粉加入钛的成分使得钛金钢板与钛金涂层结合得更紧密,安全可靠更耐腐蚀。
特别设计卧式小直径,安装方便,节省空间。
直径:58MM长度500MM
基本成分,搪瓷釉的基本成分有下列5种。基体剂:占瓷釉总量的40~60%,是决定搪瓷釉主要性能的成分。有氧化硅、氧化锆、氧化钛等。助熔剂:促进搪瓷釉熔融,改善其工艺性能和物理化学性能。有氧化钠、氧化钾、氧化硼等。乳浊剂:赋予坯体以良好的遮盖能力。有氧化钛、氧化锑、氧化锆、氧化锶等。密着剂:使瓷釉同坯体牢固结合。有氧化钴、氧化镍、氧化铜、氧化锑、氧化钼等。着色剂:赋予搪瓷釉以各种颜色,以达到彩饰效果的成分。有氧化钴,呈鲜蓝色;氧化铜,呈绿色或红色;氧化铬,呈深绿色;氧化铁,呈赭红色等。这类氧化物的用量一般为0.1~2.5%。
臭氧放电电极结构图
先进的钛金系列搪瓷放电管技术,其机械强度和热冲击强度大大提高。这是玻璃放电管不可以达到的:
1、机械强度和热冲击强度大大提高;
2、与玻璃管介质相比,介质损耗大大降低,介点常数大大提高;
3、低放电电压减少负荷冲击;
4、每根放电管出厂经2倍电压试验确保冲击负荷(玻璃放电管无法达到);
5、集高压电极与介电体于一体,安装、维护方便。
5.3放电室罐体:
蜂窝状排布式放电体,每根高压电极带有独立的熔断器,保证放电室整体正常、可靠、有效工作。

熔断器
额定电压4000V,额定电流500MA
直径:25MM长度150MM
熔断器是为了保证大型臭氧发生器系统的正常工作。当放电极出现击穿故障时,保险丝能在短时间内熔断,以保证不因电流过大而影响系统正常工作,保证了整个系统的安全可靠运行。

臭氧电源装置
臭氧发生器产生臭氧的核心是臭氧发生器的电源,臭氧电源是电力电子技术的演变,电能是由臭氧系统的电源柜提供的。臭氧发生器的电源柜转换常规电压和频率成为生成臭氧所需的频率和电压。电源柜输出的高压电源通过特殊的高压电缆和特制的高压聚四氟接头连接到臭氧发生器气源入口室的高压电极上,耐高电压击穿,耐臭氧氧化

控制电路
由同步脉冲触发电路、电流电压反馈电路、比较器等组成PID控制回路,使工作频率和输出电压可调,从而实现主电路的协调稳定工作,并具有电路保护功能。电源控制核心为高可靠CPU,设置自动软启动功能,并设置多重保护装置保证整机的可靠性和稳定性,产量和浓度还可根据实际需要实现平滑调节。
高频逆变
包括可控硅关断电路,因可控硅是半开关器件,它必须在自身电流过零时才能关断,而可控硅又接在电源与负载之间作为开关使用,可控硅一旦打开,就失去了控制电流大小的作用。而且臭氧放电室这一负载在起辉、正常工作、瞬时跳火或局部跳火时负载特性变化很大,这极大地影响了可控硅的正常关断,为此专门研制了相应的数字电路,保证了可控硅的关断。
可控硅全控整流桥电路
用于控制调节整流器的输出电压,实现高压输出电压与臭氧产量的平滑调节;配备滤波电感。该电路能避免放电室在起辉和工作放电时由于负载变动产生过高的电压,从而保证了电源与放电室的可靠性。
高压变压器
用于传递功率和使电子功率电路的输出与放电室匹配,对其参数的要求与普通变压器有所区别。由于放电室在整个工作过程中,负载不仅在数值上变化很大,其特性也随着起辉或正常工作时的状态不同而改变,从而要求变压器有一定的漏感来平衡上述变化,保护电子元器件。同时,漏感又容易引起电路损耗和换向时产生瞬时高电压,因此需要根据电子电路的情况选择其大小。
冷却系统
臭氧发生器产生臭氧的同时,还产生大量热量需要释放出来,这通过流过搪瓷放电体外壁的冷却液,在折流板的调解下实现均匀冷却。普通循环水里面含有钙镁离子,长时间运行的温度升高和暴露在空气中,会使循环水结垢,建议循环采用冷却液冷却。
冷却液温度控制在45度以下,并加以闭路循环系统。
二、系统工艺流程
1、臭氧设备系统气体处理工艺流程:

三、控制部分
自控系统,主要以可编程控制器为控制核心,可编程控制器可对该系统进行逻辑控制、过程控制、数据采集及控制和图形工作站等。对输入/输出进行逻辑控制,完成通讯以及数据处理和双方通信功能。具有体积小、组装灵活、结构紧凑、可靠性高、抗干扰能力强、界面直观性好、操作简单等优点。
系统所有输出点状态在液晶显示屏上,CPU通过传感器检测到的传感信息进行运算,把不良信号发出警报信号和显示出错误信号。可设置报警阈值,出现非正常现象立即自动停止运行并显示故障部位。
臭氧发生器主要部件明细清单


一、安装
设备的安装应遵循当地的有关法律法规,并严袼遵守
产品在出厂之前均已经过严格的检验和测试,但为了确保机器安全、可靠、耐久地投入运行,请务必在使用机器之前详细阅读说明书,充分掌握设备组操作规范和技能,使机器长期处于良好的工作状态。
当说明书中规定的条款与当地的有关法律、法规(特别是安全方面)不相同时,应按偏向于更安全的条款执行。
操作者有责任保证机器在安全的条件下运行,如果认为机器有不安全的隐患,应及时检修。
预先规划、选择良好的安装场所乃是正确使用空压系统的先决条件
1.须宽阔采光良好的场所,以利操作与检修;
2.空气之相对湿度宜低,灰尘少,空气清净且通风良好;
3.环境温度须低于40℃,因环境温度越高,则压缩机之输出空气量愈少;
4.如果工厂环境较差,灰尘多,须加装前置过滤设备;
5.预留通路,具备条件者可装设天车,以利维修保养;
6.预留保养空间,压缩机与墙之间至少须应有70公分以上距离;
7.设备离顶端空间距离至少一米以上;
8.风冷型机器最好应有排风扇或导风管将热风导出室外,避免热风循环到进风口;
9.压缩机污水、废油的排放应遵守当地环保部门的规定。
二、调试和运行
1、新机调试,必须由指定或认可的调试人员进行;
2、开机前应确认机组内无人,并检查是否有遗留物品和工具,关上机组门;开机时应先通知机组周围人员注意安全;
3、试运转时,严格检查压缩机的运转方向,当发现反转应立即停机,切断电源,把三相线任何两根对调再重新开机,否则会损坏压缩机(每次工厂电源检修须注意!);
4、压缩机运行不能高于铭牌规定的排气压力,否则会导致电机过载而烧坏;
5、当压缩机处于远程或联动控制时,机器随时可能启动,应挂牌提醒;
6、当设备发生故障或有不安全因素存在时,切勿强行开机。














