[拼音]:mujiegou de lianjie
[外文]:connection in timber structure
木材因天然尺寸有限,或结构构造的需要,而用拼合、接长和节点联结等方法,将木料连接成结构和构件。连接是木结构的关键部位,设计与施工的要求应严格,传力应明确,韧性和紧密性良好,构造简单,检查和制作方便。常见的连接方法有:
榫卯连接中国古代匠师创造的一种连接方式(见中国古代木结构)。其特点是利用木材承压传力,以简化梁柱连接的构造;利用榫卯嵌合作用,使结构在承受水平外力时,能有一定的适应能力。因此,这种连接至今仍在中国传统的木结构建筑中得到广泛应用。其缺点是对木料的受力面积削弱较大,用料不甚经济。
齿连接用于桁架节点的连接方式。将压杆的端头做成齿形,直接抵承于另一杆件的齿槽中,通过木材承压和受剪传力(图1)。为了提高其可靠性,要求压杆的轴线必须垂直于齿槽的承压面(ɑ—b)并通过其中心。这样使压杆的垂直分力对齿槽的受剪面(b—C)有压紧作用,提高木材的抗剪强度。为了防止刻槽过深削弱杆件截面影响杆件承载能力,对于桁架中间节点,应要求齿深(h0)不大于杆件截面高度的1/4;对于桁架支座节点应不大于1/3。受剪面过短容易撕裂,过长又起不了应有的作用,为此宜将受剪面长度(lv)控制在4~10h范围内。并应设置保险螺栓,以防受剪面意外剪坏时,可能引起的屋盖结构倒塌。
螺栓连接和钉连接
在木结构中,螺栓和钉的工作原理是相同的,即由于阻止了构件的相对移动,而受到其孔壁木材的挤压,这种挤压还使螺栓和钉受剪与受弯,木材受剪与受劈。为了充分利用螺栓和钉受弯、木材受挤压的良好韧性,避免因螺栓和钉过粗、排列过密或构件过薄而导致木材剪坏或劈裂。在构造上对木料的最小厚度、螺栓和钉的最小排列间距已有规定。
键连接有木键和钢键两类。近些年来,木键已逐渐被淘汰,而为受力性能较好的板销和钢键所代替。钢键的形式很多,常见的有裂环、剪盘、齿环和齿板等四种(图2)。均可用于木料接长,拼合和节点连接,其承载能力通过试验确定。
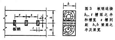
(1)板销连接。用板片状硬木销阻止被拼合构件的相对移动(图3),板销主要在顺纹受弯条件下传力,具有较高的承载能力,故应注意使其木纹垂直于拼合缝,为保证连接的高度紧密性和生产的高效率,宜用专门的机具按统一尺寸挖销槽和制板销,并按构造要求用系紧螺栓连接方木或圆木。板销连接具有刚度好,对木构件的材质无特殊要求。在方木和原木的拼合中可收到较好的技术经济效果。
(2)裂环连接。应用最早,连接点对木材受力面积削弱较小,具有较高的承载能力。但连接主要靠木材受剪传力,韧性较差。因此,除在环上开有裂口使环圈略能伸缩外,还要求使用干燥的木材和提高制作环槽的精度,以保证连接的紧密性。所以,裂环连接仅适用于工厂生产的木结构。
(3)剪盘连接。用成对的钢盘(剪盘和齿盘)分别嵌入连接缝两侧构件的环槽中,通过系紧螺栓受剪传力,木构件主要受剪和承压,具有与裂环相似的优缺点。但剪盘连接可以随意拼拆,很适合装配式构件使用。
(4)齿环连接和齿板连接。齿环和齿板是对裂环和剪盘的改进。利用高强螺栓或专门机具将齿环或齿板直接压入被连接构件中,而不必预先挖槽,既方便又紧密,且具有较好的韧性。但齿环不能做成装配式,齿板承载能力较低。