Éú²úÈ«ÃÞ»úÖ¯²¼µÄӡȾÆóÒµÉú²ú¹ý³ÌÖвúÉúµÄ·ÏË®Ö÷Òª°üÀ¨Í˽¬·ÏË®¡¢ÖóÁ¶·ÏË®¡¢Æ¯°×·ÏË®¡¢Ë¿¹â·ÏË®¡¢È¾É«·ÏË®ºÍÓ¡»¨·ÏË®µÈ¡£Í˽¬·ÏˮˮÁ¿½ÏС£¬µ«º¬ÓдóÁ¿µÄ½¬ÁϺÍÉռÆäCOD ¿É¸ß´ï10 g/L£¬ÇÒ¼î¶ÈÇ¿¡¢¿ÉÉú»¯ÐԲ¶Ôº¬Í˽¬·ÏË®µÄ¸ßŨ¶ÈӡȾ·ÏË®µÄ»ìÄýÍÑÉ«´¦ÀíÒ»°ã²ÉÓÃÁòËáÑÇÌú½ÏΪ¾¼ÃÓÐЧ£¬µ«ÁòËáÑÇÌúͶ¼ÓÁ¿½Ï¸ß£¬ÇÒÒ×Ë®½â£¬²úÉú´óÁ¿µÄÁòËáÑΣ¬ÓëÓÃÁòËáµ÷½ÚpH ʱ²úÉúµÄÁòËá¸ùÒ»Æð½øÈë·ÏË®ºó£¬Ôì³É·ÏË®ÖÐÁòËáÑκ¬Á¿½Ï¸ß¡£¶øµ±Ê¹ÓÃÑáÑõ·¨´¦Àíº¬ÁòËáÑηÏˮʱ£¬ÁòËáÑεĴæÔÚ»áʹÑáÑõϵͳ³öÏÖ²ú¼×Íé¾ú£¨MPB£© ºÍÁòËáÑλ¹Ô¾ú£¨SRB£©¾ºÕù»ùÖʵÄÏÖÏ󣬲¢ÇÒÁòËáÑλ¹Ô²úÎÁò»¯Î¶ÔMPB ºÍSRB Óж¾ÐÔÒÖÖÆ×÷Óá£ÁòËáÑλ¹Ô×÷Óò»½ö½µµÍÁË΢ÉúÎïµÄ»îÐÔ£¬¶øÇÒÑÏÖØÊ±¿ÉʹÑáÑõ´¦ÀíϵͳÔËÐÐʧ°Ü£¬Òò¶øÓбØÒª¶Ô·ÏË®µÄm£¨COD£©¡Ãm£¨SO42-£©¼ÓÒÔ¿ØÖÆ¡£ËäÈ»m£¨COD£©¡Ãm£¨SO42-£©ÊÇÓ°ÏìÑáÑõ¹ý³ÌµÄÒ»¸öÖØÒªÒòËØ£¬µ«ÓÉÓÚ¸÷Ñо¿Õß²ÉÓõĻùÖʺͷ´Ó¦Æ÷ÀàÐ͵Ȳ»Í¬£¬Òò´ËµÃµ½µÄ¹ØÓÚm£¨COD£©¡Ãm£¨SO42-£©Ó°ÏìÑáÑõЧ¹ûµÄ½áÂÛ²»¾¡Ïàͬ¡£
±ÊÕß²ÉÓø´ºÏʽÑáÑõÕÛÁ÷°å·´Ó¦Æ÷£¨HABR£©¶Ôº¬ÁòËáÑÎӡȾ·ÏË®½øÐд¦Àí£¬¿¼²ìÁ˲»Í¬m£¨COD£©¡Ãm£¨SO42-£©¶ÔHABR ÔËÐйý³ÌÖÐCOD µÄÈ¥³ýÂÊ¡¢ÁòËáÑεϹÔÂÊÒÔ¼°Áò»¯ÎïŨ¶È±ä»¯¡¢»Ó·¢ÐÔÖ¬·¾ËᣨVFA£©Å¨¶È±ä»¯Çé¿öµÄÓ°Ïì¡£
1 ʵÑ鲿·Ö
1.1 ʵÑé×°ÖÃ
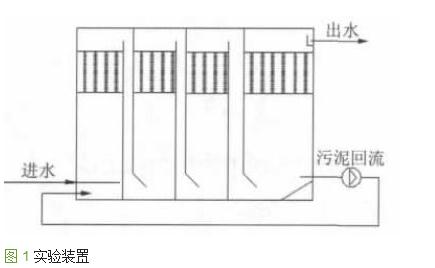
±¾ÊµÑéËùÓÃHABR ÓÉ8 mm ºñµÄPVC °åÖÆ³É£¬³ß´çΪ1 800mm¡Á350mm¡Á1 300mm£¬ÓÐЧÈÝ»ý750 L£¬·´Ó¦Æ÷ÄÚ·ÖΪ4 ¸ö·´Ó¦ÊÒ£¬´ÓµÚÒ»¸ñÊÒÏÂÃæÓô©¿×¹Ü¾ùÔȽøË®¡£ºóÃæÈý¸ö¸ñÊÒÿÊÒÓÉÒ»¸öÉÏÁ÷ÊÒºÍÒ»¸öÏÂÁ÷ÊÒ×é³É£¬¶þÕß¿í¶È±ÈΪ4¡Ã1¡£ÔÚͨÍùÉÏÁ÷Êҵĵ²°åϲ¿±ßÔµÓÐ45¡ãµ¼Á÷°å²¼Ë®£¬±ãÓÚ½«Ë®ËÍÖÁÉÏÁ÷ÊÒµÄÖÐÐÄ£¬Ê¹ÄàË®³ä·Ö»ìºÏ½Ó´¥£¬Î¬³Ö½Ï¸ßµÄÎÛÄàŨ¶È£¬Í¬Ê±¿É±ÜÃâË®Á÷½øÈëʱ²úÉúµÄ³å»÷£¬Æðµ½»º³åË®Á÷ºÍ¾ùÔȲ¼Ë®µÄ×÷Ó㬴ӶøÓÐÀûÓÚ¶Ô΢ÉúÎï¹ÌÌåµÄ½ØÁô¼°Î¢ÉúÎïµÄÉú³¤£¬±£Ö¤ÁËÔËÐÐЧ¹û¡£·´Ó¦Æ÷Éϲ¿ÔöÉè×éºÏË«»·ÌîÁÏ£¬Ê¹ÎÛÄàÓë·ÏË®½Ó´¥¸ü³ä·Ö¡£·´Ó¦Æ÷ÄÚ·ÏˮζÈΪ30¡«40 ¡æ£¬Ë®Á¦Í£Áôʱ¼ä£¨HRT£©Îª24 h¡£ÊµÑé×°ÖÃÈçͼ 1 Ëùʾ¡£
1.2 ʵÑéÓÃË®
ʵÑéÔڹ㶫ʡ½ÒÑôÊÐijȫÃÞ»úÖ¯²¼Ó¡È¾³§·ÏË®´¦ÀíÕ¾½øÐУ¬¸ÃӡȾ³§²úÉúµÄÍ˽¬·ÏË®ÔÚÓëÆäËû¹¤Ðò²úÉúµÄ·ÏË®»ìºÏºó£¬COD ÈԸߴï5 g/L£¬pH Ô¼13£¬ÔÚÓÃÁòËáµ÷½ÚpH ºó£¬ÓÉÁòËáÑÇÌú»ìÄýÍÑɫԤ´¦Àí²¢³Áµí£¬³öˮˮÖʼû±í 1¡£È¡Æä³öË®×÷ΪʵÑéÓÃË®¡£
1.3 ·ÖÎö²âÊÔ·½·¨
COD£ºÖظõËá¼Ø·¨¡²9¡³£»SO42-Ũ¶È£º¸õËá±µ¹â¶È·¨¡²9¡³£»Áò»¯ÎïŨ¶È£ºµâÁ¿·¨¡²9¡³£»VFA£ºË®ÕôÆøÕôÁ󷨡²10¡³¡£
1.4 ʵÑé½×¶Î
ΪÁË̽ÌÖ²»Í¬m£¨COD£©¡Ãm£¨SO42-£©¶ÔHABR ÔËÐÐЧÄܵÄÓ°Ï죬ÔÚϵͳÔËÐÐÎȶ¨ºó£¬±£³Ö½øË®COD Ϊ4 000 mg/L ²»±ä£¨ÓÃÆÏÌÑÌǵ÷½Ú£©£¬½øË®SO42-ÖÊÁ¿Å¨¶È´Ó400 mg/L Öð²½Ôö¼ÓÖÁ8 000 mg/L£¨ÓÃÁòËáÄÆµ÷½Ú£©£¬Ê¹µÃm£¨COD£©¡Ãm£¨SO42-£©·Ö±ðΪ10¡¢9¡¢8¡¢7¡¢6¡¢5¡¢4¡¢3¡¢2¡¢1¡¢0.5¡£Ã¿´Î¸Ä±äSO42-Ũ¶Èʱ£¬Á¬Ðø10 d ²â¶¨·´Ó¦Æ÷COD È¥³ýÂÊ¡¢SO42-È¥³ýÂÊ¡¢³öË®Áò»¯ÎïŨ¶È¡¢VFA Ũ¶ÈµÈÖ¸±ê£¬È¡¸÷Ö¸±êµÄ×î´óÖµ¡£
2 ʵÑé½á¹ûÓëÌÖÂÛ
2.1 m£¨COD£©¡Ãm£¨SO42-£©¶ÔCOD¡¢SO42-È¥³ýÂʵÄÓ°Ïì
m£¨COD£©¡Ãm£¨SO42-£©¶ÔCOD¡¢SO42-È¥³ýÂʵÄÓ°Ïì¼ûͼ 2¡£
´Óͼ 2 ¿ÉÒÔ¿´³ö£¬COD¡¢ÁòËáÑÎÈ¥³ýÂʾùËæm£¨COD£©¡Ãm£¨SO42-£©¼õС¶ø½µµÍ¡£µ±m£¨COD£©¡Ãm£¨SO42-£©Îª4¡«10 ʱ£¬Æä¶Ô¶þÕßÈ¥³ýÂʵÄÓ°Ïì²»´ó£¬ÆäÖÐCODÈ¥³ýÂÊΪ82.61%¡«87.48%£¬ÁòËáÑÎÈ¥³ýÂÊΪ81.57%¡«91.19%¡£µ±m£¨COD£©¡Ãm£¨SO42-£©=3 ʱ£¬ÏµÍ³¶ÔCOD µÄÈ¥³ýÂÊϽµÖÁ76.65% £¬¶ÔÁòËáÑÎÈ¥³ýÂÊϽµÖÁ71.83%¡£µ±m£¨COD£©¡Ãm£¨SO42-£©=2 ʱ£¬¶þÕßÈ¥³ýÂʾù´ó·ùϽµ£¬·´Ó¦Æ÷ÔËÐÐЧ¹û±ä²î£¬COD È¥³ýÂÊΪ23.39%£¬ÁòËáÑÎÈ¥³ýÂÊΪ30.24% ¡£µ±m£¨COD£© ¡Ãm£¨SO42-£©=0.5 ʱ£¬ÏµÍ³ÔËÐÐʧ°Ü£¬COD È¥³ýÂʽöΪ9.56%£¬ÁòËáÑÎÈ¥³ýÂʽöΪ13.25%¡£·ÖÎöÔÒò£¬¿ÉÄÜÊÇÓÉÓÚm£¨COD£©¡Ãm£¨SO42-£©½Ï¸ßʱ£¬ÊµÖÊÊÇÁòËáÑεÄÖÊÁ¿Å¨¶ÈÖð½¥±äС£¬³ä×ãµÄµ×ÎïʹÁòËáÑÎÓнϸߵÄÈ¥³ýÂÊ£»m£¨COD£©¡Ãm£¨SO42-£©¹ýµÍʱ£¬SO42-Ïà¶Ô¹ýÊ££¬COD »¹ÔÄÜÁ¦²»×㣬µ¼ÖÂSRB µÄÉúÎï»îÐÔ½µµÍ£¬ÏµÍ³COD È¥³ýÂʺÍÁòËáÑεϹÔÈ¥³ýÂʾùϽµ¡²11¡³¡£
2.2 m£¨COD£©¡Ãm£¨SO42-£©¶Ô³öË®Áò»¯ÎïŨ¶ÈµÄÓ°Ïì
m£¨COD£©¡Ãm£¨SO42-£©¶Ô³öË®Áò»¯ÎïŨ¶ÈµÄÓ°Ïì¼ûͼ 3¡£
Èçͼ 3 Ëùʾ£¬Ëæ×Åm£¨COD£©¡Ãm£¨SO42-£©µÄ½µµÍ£¬³öË®Áò»¯ÎïÖÊÁ¿Å¨¶ÈÖð½¥Éý¸ß¡£µ±m£¨COD£©¡Ãm£¨SO42-£©Îª4¡«10 ʱ£¬³öË®Áò»¯ÎïÖÊÁ¿Å¨¶ÈËæ×Åm£¨COD£© ¡Ãm£¨SO42-£©¼õÉÙÔö¼Ó½Ï»ºÂý£¬m£¨COD£©¡Ãm£¨SO42-£©=3ʱ£¬Áò»¯ÎïÖÊÁ¿Å¨¶ÈΪ143 mg/L£¬½áºÏͼ 2 ¿ÉÖª£¬m£¨COD£©¡Ãm£¨SO42-£© Ϊ4 ¡«10 ʱ£¬ÏµÍ³¶ÔCOD¡¢SO42-µÄÈ¥³ýЧ¹û½ÏºÃ£¬ËµÃ÷¸Ã·¶Î§ÄÚ²úÉúµÄÁò»¯Îïδ¶ÔϵͳÖеÄϸ¾ú²úÉúÃ÷ÏÔµÄÒÖÖÆ×÷Óã»m£¨COD£©¡Ãm£¨SO42-£©¡Ü3 ʱ£¬³öË®Áò»¯ÎïÖÊÁ¿Å¨¶È´ó·ùÔö¼Ó£¬COD¡¢ÁòËáÑÎÈ¥³ýÂʾù½ÏµÍ£¬ËµÃ÷Áò»¯Îï¶ÔMPB ºÍSRB ¾ù²úÉúÁ˽ÏÇ¿µÄÒÖÖÆ×÷Ó㬵¼ÖÂϵͳ¶ÔCOD¡¢SO42-µÄÈ¥³ýЧ¹û½Ï²î¡£COD È¥³ýÂÊϽµµÄ·ù¶È´óÓÚÁòËáÑÎÈ¥³ýÂÊϽµµÄ·ù¶È£¬ËµÃ÷²ú¼×Íé¾ú£¨MPB£©¶ÔÁò»¯Îï¶¾ÐÔµÄÃô¸ÐÐÔÇ¿ÓÚÁòËáÑλ¹Ô¾ú£¨SRB£©£¬µ±Áò»¯ÎïÔö¼Óµ½Ò»¶¨³Ì¶ÈʱMPB ÏÈÓÚSRB Êܵ½ÒÖÖÆ¡£
2.3 m£¨COD£©¡Ãm£¨SO42-£©¶ÔVFA Ũ¶ÈµÄÓ°Ïì
m£¨COD£©¡Ãm£¨SO42-£©¶ÔVFA Ũ¶ÈµÄÓ°ÏìÈçͼ 4 Ëùʾ¡£
ÓÉͼ 4¿É¼û£¬Ëæ×Åm£¨COD£©¡Ãm£¨SO42-£©¼õС£¬³öË®VFA ÖÊÁ¿Å¨¶ÈÖð½¥Ôö¼Ó£¬µ±m£¨COD£©¡Ãm£¨SO42-£©Îª4¡«10 ʱ£¬³öË®VFA ÖÊÁ¿Å¨¶È¾ù½ÏµÍ£¬Ð¡ÓÚ305 mg/L£¬´Ëʱ£¬ÏµÍ³COD¡¢ÁòËáÑÎÈ¥³ýÂʾù½Ï¸ß£¬ÔËÐÐЧ¹ûÁ¼ºÃ¡£µ±m£¨COD£©¡Ãm£¨SO42-£©´Ó4 ½µÖÁ3 ʱ£¬³öË®VFAÖÊÁ¿Å¨¶È´Ó305 mg/L ÔöÖÁ916 mg/L¡£µ±m£¨COD£© ¡Ãm£¨SO42-£©½µÖÁ2 ʱ£¬³öË®VFA ÖÊÁ¿Å¨¶È¸ß´ï1 850mg/L£¬ÏµÍ³¶ÔCOD È¥³ýÂʽϵͣ¬·´Ó¦Æ÷ÔËÐÐЧ¹û½Ï²î£¬µ±m£¨COD£©¡Ãm£¨SO42-£©=0.5 ʱ£¬³öË®VFA ÖÊÁ¿Å¨¶ÈΪ2 862 mg/L£¬ÏµÍ³ÔËÐÐʧ°Ü¡£¡£
3 ½áÂÛ
²ÉÓø´ºÏʽÑáÑõÕÛÁ÷°å·´Ó¦Æ÷£¨HABR£©´¦Àíº¬ÁòËáÑÎӡȾ·Ïˮʱ£¬m£¨COD£©¡Ãm£¨SO42-£©¿É×÷ΪHABRÔËÐеÄÖØÒª²ÎÊýÖ®Ò»¡£µ±m£¨COD£©¡Ãm£¨SO42-£©>3ʱ£¬·´Ó¦Æ÷ÔËÐÐÁ¼ºÃ£¬¶ÔӡȾ·ÏË®µÄCOD¡¢ÁòËáÑεÄÈ¥³ýÂʾù½Ï¸ß£¬³öË®Áò»¯ÎïÖÊÁ¿Å¨¶ÈСÓÚ143 mg/L£»µ±m£¨COD£©¡Ãm£¨SO42-£©¡Ü3 ʱ£¬·´Ó¦Æ÷´¦ÀíЧÄܽϲCOD¡¢ÁòËáÑÎÈ¥³ýÂʾù¼±¾çϽµ£»µ±m£¨COD£©¡Ãm£¨SO42-£©¡Ü0.5 ʱ£¬·´Ó¦Æ÷ÔËÐÐʧ°Ü¡£Òò´Ë£¬ÒªÏë±£³ÖHABR ´¦Àíº¬ÁòËáÑÎӡȾ·ÏË®ÓнϸߵÄCOD¡¢ÁòËáÑÎÈ¥³ýÂÊÐè±£Ö¤m£¨COD£©¡Ãm£¨SO42-£©>3¡£














