ÕªÒª£º ±¾ÎÄÖ÷Òª²ûÊöÓóôÑõÓë×ÏÍâ¹â·øÉäµÄÐͬ×÷Ó㬲úÉúÑõ»¯ÐÔ¼«Ç¿µÄôÇ×ÔÓÉ»ùÀ´¶ÔÓÎÓ¾³ØË®½øÐÐɱ¾úÏû¶¾Ó¦Ó㬲¢¶Ô³ôÑõ£×ÏÍâÁªºÏ×÷ÓûúÀíºÍÓÎÓ¾³Ø³ôÑõͶ¼ÓÁ¿½øÐÐÁ˲ûÊö£¬³ôÑõÓë×ÏÍâÏßÏà½áºÏµÄ¼¼Êõ¾ßÓÐÁ¼ºÃµÄÑо¿¿ª·¢¼ÛÖµºÍ¹ãÀ«µÄÓ¦ÓÃǰ¾°¡£
¹Ø¼ü´Ê£º ³ôÑõ£»×ÏÍâ¹â·øÉ䣻ôÇ×ÔÓÉ»ù£»ÓÎÓ¾³Ø
1¡¢ ÒýÑÔ
Ëæ×ÅÎÒ¹úµÄ¾¼Ã²»¶Ï·¢Õ¹£¬ÈËÃñ¶ÔÎÄ»¯ºÍÌåÓý»î¶¯µÄÒªÇóÔ½À´Ô½¸ß£¬ÓÎÓ¾³¡¹Ý¼°Ï·Ë®ÓéÀÖ³¡ËùÔÚÎÒ¹ú±Ø½«Ô½À´Ô½ÆÕ¼°¡£ÓÎÓ¾³ØÊÇÔ˶¯Ô±½øÐÐѵÁ·±ÈÈü¼°ÈËÃǶÍÁ¶ÉíÌå¡¢ÓéÀֵĹ«¹²³¡Ëù£¬ÔÚÓÎÓ¾³ØµÄ½¨ÉèºÍ¸ÄÔìÖУ¬³ØË®µÄÑ»·´¦ÀíÓëÏû¶¾ÊDZز»¿ÉÉٵĻ·½Ú£¬ÒòΪÔÚË®×ÊÔ´Ï൱½ôÕŵÄ21ÊÀ¼Í£¬Ó¾³Ø²ÉÓÃÑ»·¾»»¯¸øË®ÏµÍ³ÒÑÊǹ²Ê¶£¬¶øÏû¶¾Èô´ï²»µ½Ò»¶¨µÄÒªÇó£¬Ó¾³Ø¾ÍºÜÓпÉÄܳÉΪ¼²²¡»òÑÏÖØ´«È¾²¡µÄÀ©É¢³¡Ëù¡£
Õë¶ÔÓÎÓ¾³¡ËùÎÀÉúÎÊÌ⣬ÎÀÉú²¿ÓÚ1996ÄêÐÞ¶©°ä²¼Á˹ú¼Ò±ê×¼GB9667¡¶ÓÎÓ¾³¡ËùÎÀÉú±ê×¼¡·£¬ÆäÖжÔÓàÂÈ¡¢»ë×Ƕȡ¢ÄòËØ¡¢´ó³¦¾úȺÊýµÈÖ¸±ê½øÐÐÁ˹涨£¬¾ßÌåÀý¾ÙÈçÏ£º
|
¸Ã±ê×¼°ä²¼ºó£¬Ô½¨É貿ÐÐÒµ±ê×¼CECS14: 89¡¶ÓÎÓ¾³Ø¸øË®ÅÅË®Éè¼Æ¹æ·¶¡·µÄ²¿·ÖÌõÎĺÍÄÚÈÝÒѲ»ÄÜÂú×ãÉç»á·¢Õ¹ºÍ±ê×¼µÄÒªÇó¡£¼øÓÚ´Ë£¬½¨É貿½¨ÖþÉè¼ÆÔº¡¢¹ú¼ÒÌåÓý×ܾÖÓÎÓ¾Ô˶¯¹ÜÀíÖÐÐÄ¡¢ÖйúÓÎÓ¾Ô˶¯Ð»áµÈÈý¼Òµ¥Î»ÁªºÏÖ÷±àÁËеÄCECS14:2002¡¶ÓÎÓ¾³ØºÍË®ÉÏÓÎÀֳظøË®ÅÅË®Éè¼Æ¹æ·¶¡·¡£Ôڸñê×¼³ØË®Ïû¶¾ÖУ¬Ê×ÏÈÒý³öÁ˳ôÑõÏû¶¾·½°¸£¬ÔÚÆäÌõÎÄ˵Ã÷ÖÐÊÇÕâÑùÃèÊöµÄ£º
³ôÑõÓÃÓÚÓÎÓ¾³ØË®µÄÏû¶¾£¬Å·ÃÀ¹ú¼ÒÒѾÆÕ±é²ÉÓá£ÎÒ¹ú¾ÅÊ®Äê´ú¿ªÊ¼²ÉÓá£ÓÉÓÚ¾ßÓкܺõÄÏû¶¾ºÍ¸ÄÉÆ³ØË®Ë®ÖʵÄЧ¹û¡£½üЩÄêÀ´¿ªÊ¼´óÁ¿Ó¦ÓÃÓÚÓÎÓ¾³ØË®µÄÏû¶¾¡£ËüµÄÓÅȱµãÈçÏ£º
¢Å³ôÑõÏû¶¾µÄÓŵ㣺
¢Ù³ôÑõΪǿÑõ»¯¼Á¡¢É±¾úÄÜÁ¦Ç¿¡£²»½öÄÜɱÃðϸ¾ú¡¢´ó³¦¸Ë¾ú£¬»¹ÄÜɱËÀ²¡¶¾¡£
¢Ú³ôÑõÄܽ«Ë®ÖеÄÓлúÎïÑõ»¯ÎªÎÞ»úÎï»òÒ×±»Îü¸½µÄÆäËüÖмäÎïÖÊ£¬¾ºóÐøµÄ»îÐÔÌ¿¹ýÂËÆ÷ÓèÒÔÎü¸½¶øÈ¥³ý¡£´Ó¶øÊ¹³ØË®Ç峺·¢À¶¡¢Í¸Ã÷¶ÈºÃ¡¢³ØË®Î޴̼¤ÐÔ¡¢ÎÞÒì棬¶ÔÑÛ¡¢Æ¤·ôºÍÍ··¢ÎÞÉ˺¦£¬²¢ÄÜʹÓÎÓ¾³ØÖÜΧµÄ¿ÕÆøÇåкÍÓÎÓ¾ÕßÓÐÊæÊʸС£
¢Û³ôÑõÊÇÒÔ¿ÕÆøÎªÔÁÏ£¬Í¨¹ýÎÞÉù·Åµç·½·¨ÖƱ¸³ôÑõ£¬²Ù×÷·½±ã¡£
¢Ü³ôÑõ¾ßÓÐÔöÇ¿ÐõÄýÄÜÁ¦µÄ¹¦ÄÜ£¬²»»áµ¼Ö³ØË®ÖÐÓк¦ÎïÖʺͺ¬ÑÎÁ¿µÄÔö¼Ó¡£
¢Ý²ÉÓûîÐÔÌ¿ÂËÁÏÎü¸½³ØË®ÖжàÓàµÄ³ôÑõºÍÆäËûÎïÖÊ£¬±£Ö¤Á˰²È«£¬ÇÒÌá¸ßÁ˳ØË®µÄ½à¾»¶È¡£
¢Þ³ôÑõÑõ»¯³ØË®ÖеÄÓлúÎ²»²úÉúÈýÂȼ×Í飨THM£©£¨Ä¿Ç°ÓÎÓ¾³Ø³ØË®µÄ´ËÏîË®ÖÊÖ¸±ê´ó¶¼ÑÏÖØ³¬±ê£©¡£²¢ÄÜÏÞÖÆÓлúÎïºÍÎÞ»úÎïµÄŨ¶È¡£
¢ßÉèÓб£»¤ÏµÍ³ºÍ¶àÓà³ôÑõÆøÌåµÄÊÕ¼¯Ïû»¯×°Ö㬰²È«¿É¿¿¡£
¢Æ³ôÑõÏû¶¾µÄȱµã£º
¢ÙÉ豸Ͷ×ʴ󣨸ßÓÚÆÕͨÏû¶¾ÏµÍ³µÄ70¡«80%£©¡£
¢Ú»ú·¿Ãæ»ý´ó£¨Ô¼ÎªÆÕͨÏû¶¾ÏµÍ³µÄ2±¶£©¡£
¢ÛÏà¶ÔÂÈ£¬³ôÑõÎÞ³ÖÐøÏû¶¾¹¦ÄÜ¡£
¢Ü³ôÑõ²»Îȶ¨£¬ÇÒÔÚË®Öв»ÈÝÒ×Èܽ⣬¹ÊÒªÔÚË®´¦ÀíϵͳÄÚ²¿²úÉúºÍÓ¦Óá£
2¡¢¹â´ß»¯³ôÑõ»¯£¨O3/UV£©¼¼Êõ
½ü¼¸ÄêÀ´£¬³ôÑõÓÉÓÚÆäÓÅÁ¼µÄɱ¾úÏû¶¾ÌØÐÔÒÔ¼°·¢Éú³É±¾µÄ²»¶ÏϽµ£¬Òò´ËÊܵ½Ô½À´Ô½¶àµÄË®´¦Àí³§¼ÒµÄÖØÊÓ£¬Ê¹ÓóôÑõ×÷Ϊɱ¾úÏû¶¾µÄµ¥Î»Ò²Ô½À´Ô½¶à¡£È»¶ø£¬ÔÚÓÎÓ¾³ØÖе¥Ò»Ê¹ÓóôÑõ´¦ÀíÖл¹´æÔÚÒ»¶¨µÄȱÏÝ£º
1) ³ôÑõͶ¼ÓÁ¿´ó£¨³ôÑõͶ¼ÓÁ¿Îª0.6¡«1.0mg/l£©£¬³É±¾Ïà¶Ô½Ï¸ß£»
2) ÒòΪ³ôÑõÓëË®½Ó´¥·´Ó¦Ê±¼äÓ¦Âú×ãCT¡Ý1.6(C£³ôÑõͶ¼ÓÁ¿mg/l£¬T£³ôÑõÓëË®½Ó´¥·´Ó¦ËùÐèÒªµÄʱ¼ämin),Ϊ±£Ö¤³ôÑõÓëË®µÄ½Ó´¥Ê±¼ä£¬·´Ó¦¹ÞÍùÍù×öµÄÌå»ý½Ï´ó£¬³É±¾Ò²½Ï¸ß£»
3) Ϊȷ±£³ØË®Ë®ÃæÉÏµÄ¿ÕÆøÖгôÑõŨ¶Èº¬Á¿²»³¬¹ý0.10mg/l£¬ÒªÓûîÐÔÌ¿Îü¸½¹ÞÀ´·Ö½âË®ÖÐÊ£ÓàµÄ³ôÑõ£¬¶ÔÓÚ±ê×¼ÐÍÓÎÓ¾³ØÀ´Ëµ£¬»îÐÔÌ¿¹ÞÌå»ý»áºÜÅӴ󣬲»½öÔö¼ÓÁ˹¤³Ì³É±¾£¬ºóÆÚά»¤·ÑÓÃÒ²ºÜ¸ß¡£
¹â´ß»¯³ôÑõ»¯£¨O3/UV£©Êǽ«³ôÑõÓë×ÏÍâ¹â·øÉ䣨²¨³¤ÔÚ180-300nmÖ®¼ä£©Ïà½áºÏµÄÒ»Öָ߼¶Ñõ»¯¹ý³Ì£¬ËüʼÓÚ20ÊÀ¼Í70Äê´ú£¬Ö÷ÒªÓÃÓÚ½â¾öÓж¾º¦ÇÒÎÞ·¨ÉúÎï½µ½âÎïÖʵķÏË®´¦ÀíÎÊÌâ¡£80Äê´úÒÔÀ´£¬Ñо¿·¶Î§À©´óµ½ÒûÓÃË®µÄÉî¶È´¦Àí¡£ÕâÖÖ·½·¨ÓÉGarrisonµÈÈËÔÚÖÎÀíº¬¸´ÔÓÌúÇèÑηÏË®Öпª·¢³öÀ´£¬ËûÃÇ·¢Ïָ÷¨¶Ô´¦ÀíÄÑÑõ»¯µÄÎïÖÊÊ®·ÖÓÐЧ£¬ÊÔÑé±íÃ÷£¬½«×ÏÍâ¹â·øÉäÓë³ôÑõÏà½áºÏ£¬ÄÜʹÑõ»¯ËÙ¶ÈÌá¸ß10¡«104±¶¡£
¹â´ß»¯³ôÑõ»¯£¨O3/UV£©¼¼ÊõÏÖÖ÷ÒªÓ¦ÓÃÓÚÈçÏ·½Ã棺
A¡¢°ëµ¼Ìå²úÒµ: ¶ÔTOCÈ¥³ý
B¡¢TFT-LCD ²úÒµ: TOC, ËáÐÔÎïÖʵÄÈ¥³ý
C¡¢µç¶Æ²úÒµ: »Ù»µÇ軯Îï , EDTA
D¡¢²É¿ó:È¥³ýÇ軯Îï
E¡¢Ä¾²Ä¼Ó¹¤: È¥·Ó
F¡¢Ê¯ÓÍ»¯Ñ§ÖÆÆ· : È¥³ýBTEX£¨±½¡¢¼×±½¡¢ÒÒ±½ºÍ¶þ¼×±¿£©ºÍÆûÓÍÌí¼Ó¼ÁMTBE
G¡¢ºËÄÜ: È¥³ýTOC
H¡¢Á¶Óͳ§: ÂÈÒÒÏ©
I¡¢Ò×±¬µÄÖÆÔìÒµ: TNT
J¡¢Ò©Æ·ÖÆÔìÒµ : È¥³ýTOC¡¢ÄÚ¶¾ËØ
ÒºÏà³ôÑõÔÚ×ÏÍâ¹âµÄ·øÉäÏ»á·Ö½â²úÉú»îÆÃµÄ´ÎÉúÑõ»¯¼ÁOH×ÔÓÉ»ù¡£OH×ÔÓÉ»ùÓëË®ÖеÄÈܽâÎï½øÐз´Ó¦¡£ÆäÖжÔ×ÔÓÉ»ù²úÉúµÄ»úÀí´æÔÚÁ½ÖÖ½âÊÍ£¬¼´£º
O3+hv-----O+O2
O+H2O----2OH
ºÍO3+H2O+hv----H2O2+O2
H2O2+hv----2OH
¾¡¹ÜÏÖÔÚ»¹²»ÄÜÈ·¶¨ÄÄÖÖ»úÀíÕýÈ·»òÔÚ²úÉúOH¹ý³ÌÖÐÕ¼Ö÷µ¼µØÎ»£¬µ«ËüÃǶ¼µÃ³ö1mol³ôÑõÔÚ×ÏÍâ¹â·øÉäϲúÉú2molOHÕâÒ»½áÂÛ¡£
³ôÑõ£×ÏÍ⣨O3/UV£©ÁªºÏ×÷ÓûúÀíΪ£º
a) ×ÏÍâ¹â·øÉäÏ£¬ÓлúÎïµÄ¼ü·¢Éú¶ÏÁѶøÖ±½Ó·Ö½â£»
b) ×ÏÍâ¹â·øÉäÏ£¬Ë®ÖгôÑõ·Ö½â³É¸üÇ¿Ñõ»¯ÄÜÁ¦µÄ×ÔÓÉ»ù£¬Ôö¼ÓÁ˶ÔË®ÖÐÓлúÎïµÄÑõ»¯ÄÜÁ¦ºÍËÙ¶È£»
c) ×ÏÍâ¹â·øÉäʹÓлúÎïÍâ²ãµç×Ó´¦ÓÚ¼¤·¢Ì¬£¬Ìá¸ß·Ö×ÓµÄ×ÔÓÉÄÜ£¬Ê¹ÓлúÎï·Ö×ӻ£¬´Ó¶øÒ×ÓÚÔÚÑõ»¯¼Á³ôÑõµÄ×÷ÓÃÏÂÑõ»¯·Ö½â¡£
3¡¢ ¸÷ÖÖ·½·¨¶Ô×ÔÀ´Ë®Öд󳦸˾úÃð¾úÂʱȽÏ
ÔÚ×ÔÀ´Ë®¸÷Ïî»ù±¾Ö¸±ê¶¼ÏàͬµÄÌõ¼þÏ£¬ÓÃO3¡¢UV¡¢O3/UV·Ö±ð×ö´ó³¦¸Ë¾úɱ¾úÂʶԱÈÊÔÑ飬½á¹ûÈçͼһËùʾ
![]() |
ÓÉÒÔÉÏÊÔÑé¿ÉÖª£¬³ôÑõ£×ÏÍ⣨O3/UV£©ÁªºÏ×÷ÓÃЧ¹û²»½ö³¬¹ýµ¥¶À³ôÑõºÍµ¥¶À×ÏÍâÏßµÄ×÷Óã¬ÉõÖÁ³¬¹ýÁ½Õߵĵþ¼Ó¡£ÔÚʵ¼ÊÓ¦ÓÃÖУ¬ÔÚÓÎÓ¾³ØÖвÉÓóôÑõ£×ÏÍâ·¨»á±Èµ¥Ò»Ê¹ÓóôÑõ¼õÉÙ³ôÑõͶ¼ÓÁ¿50£¥ÒÔÉÏ¡£Í¬Ê±£¬ÓÉÓÚ×ÏÍâ¹â·øÉäµÄ×÷Óã¬Ë®ÖеijôÑõ¶àÊýת»¯Îª×ÔÓÉ»ùOH£¬²¢ÇÒ×ÏÍâÏß¶ÔË®ÖÐÊ£ÓàµÄ³ôÑõÓзֽâºÍÆÆ»µ×÷Óã¬Í¨¹ý²âÊÔË®ÖгôÑõÊ£ÓàŨ¶È¿ÉÖª£¬¾¹ý×ÏÍâ¹â·øÉäºóË®ÖÐÊ£Óà³ôÑõµÄŨ¶ÈµÍÓÚ0.05mg/l£¬ÕâÑùʹˮÖлӷ¢µ½¿ÕÆøÖеijôÑõŨ¶ÈµÍÓÚ¹ú¼Ò°²È«Åŷűê×¼³ÉΪ¿ÉÄÜ¡£Í¬Ê±¿ÉÒÔ²»ÓûîÐÔÌ¿¹Þ¶ÔË®ÖгôÑõ½øÐÐÎü¸½£¬¼õÉÙÁ˹¤³Ì³É±¾¡£ÔÙÓУ¬×ÏÍâ¹â·øÉäÓë³ôÑõÏà½áºÏ£¬ÄÜʹÑõ»¯ËÙ¶ÈÌá¸ß10¡«104±¶£¬Òò´Ë£¬´ó´óËõСÁ˳ôÑõ·´Ó¦¹ÞµÄÌå»ý£¬ÉõÖÁ²»Ó÷´Ó¦¹Þ£¬¶øÀûÓùܵÀµÄ³¤¶ÈÀ´Ôö¼Ó³ôÑõÓëË®µÄ»ìºÏʱ¼ä¡£
4¡¢¹â´ß»¯³ôÑõ»¯£¨O3/UV£©¼¼ÊõÔÚÓÎÓ¾³ØÖеÄÓ¦ÓÃÌØµã
UV-O3ϵͳµÄ¸ßЧÑõ»¯¹ý³ÌÆäÓŵã¿É¹éÄÉÈçÏ£º¡¡
¡ñ»·±££ºÎÞ¶þ´ÎÎÛȾ£¬³ýÓÎÓ¾³ØÒì棬Ãâ·¢ÖÊËðÉË£¬Ïû³ý³ØË®¶ÔÈËÑÛ¾¦ºÍƤ·ôµÄ´Ì¼¤¡£
¡ñ½ÚË®£º·´Ï´Ë®¼õÉÙ50%£¬×ܽÚË®20%¡£
¡ñʡҩ£º³ØË®»ìÄý¼ÁºÍÂÈÖÆ¼Á¿É¼õÉÙ80%
¡ñ¸ßЧ£ºÉ±¾úÄÜÁ¦ºÍɱ¾úËÙ¶È´ó·ùÌá¸ß£¬±ÜÃâʹÓûîÐÔÌ¿¹ÞµÄÂé·³¼°ÎÀÉú·½ÃæµÄÎÊÌâ¡£
¡ñ±ã½Ý£ºÐèÓó§·¿Ãæ»ýС£¬°²×°¡¢²Ù×÷ÈÝÒ×£¬Î¬»¤Ò²½Ï¼òµ¥¡£
¡ñ×ÔÈ»£º¿ÉÒÔÓÐЧȥ³ýÂÈÆøÎ¶£¬¿ÕÆøÇåУ¬Ë®Öʽྻ£¬ÎµÀ¶Í¸Ã÷
¡ñ³É±¾µÍ£º£¬Êǵ¥Ò»Ê¹ÓóôÑõ³É±¾µÄ1/2¡£
5¡¢ÓÎÓ¾³Ø¹â´ß»¯³ôÑõ»¯ÏµÍ³Ñ¡ÔñÓëÉè¼ÆµÄÖ÷Òª¿¼ÂÇÒòËØ
a) Ö÷ÒªÉè¼ÆÒÀ¾Ý
Ë®ÖÊÆÀ¼ÛÓ¦°´GB9667-1996¡¶ÓÎÓ¾³¡ËùÎÀÉú±ê×¼¡·ÒªÇó½øÐУ¬Éè¼ÆÖ÷ÒªÓ¦ÒÀ¾ÝCECS14-2002 ¡¶ÓÎÓ¾³ØºÍË®ÉÏÓÎÀֳظøË®ÅÅË®Éè¼Æ¹æ·¶¡·£¬ÈËÔ±¸ººÉÉè¼ÆµÈ¿É²Î¿¼DIN19643¡¶ÓÎÓ¾³ØÓëÔ¡³ØË®µÄ´¦Àí¡·µÈ¡£¹ýÂËÆ÷Ó¦·ûºÏ¡¶JB2932Ë®´¦Àí»·±£Éè±¸ÖÆÔì¼¼ÊõÌõ¼þ¡·µÈ¡£
b) Ë®´¦ÀíÑ»··½Ê½¡¢Ñ»·ÖÜÆÚºÍÁ÷Á¿
³ØË®¾»»¯´¦ÀíÑ»··½Ê½ÓÐ˳Á÷¡¢ÄæÁ÷¡¢»ìºÏÁ÷ÈýÖÖ£¬¹æ·¶³Ø¡¢±ÈÈü³ØÓ¦²ÉÓûìºÏÁ÷¾»»¯´¦ÀíÑ»··½Ê½¡£
Ñ»·ÖÜÆÚ£ºTx=24/n£¨h£©£¬nΪÿÌìÑ»·´ÎÊý£¬¹«¹²ÓÎÓ¾³ØÒ»°ãΪ4-6´Î¡£
Ñ»·Á÷Á¿£ºqx=¦Áf¡¤V/TxÆäÖÐTxÑ»·ÖÜÆÚ£¬¦ÁfΪ¹ÜµÀ¡¢¾»Ë®É豸ºÍ²¹¸øË®ÏäµÄË®ÈÝ»ýϵÊý£¬Ò»°ã°´1.1-1.2ѡȡ£¬VΪÓÎÓ¾³ØµÄË®ÈÝ»ý¡£
c) ³ôÑõͶ¼ÓÁ¿µÄÈ·¶¨£º
ÒÔ±ê×¼ÓÎÓ¾³Ø£¨21mX50m,Ë®Éî1.8m£©ÎªÀý£º±ê×¼³ØË®Á¿1890m3
²ÉÓ÷ÖÁ÷Á¿Í¶¼Ó
³ôÑõͶ¼ÓÁ¿£º0.6-1.0mg/L£¬ÈçÒÔ±ê×¼Ó¾³ØÎªÀý£¬qx=1.1¡¤1890/6=340¶Ö/Сʱ
Èç²ÉÓ÷ÖÁ÷Á¿Í¶¼Ó£¬Ò»°ã·ÖÁ÷Á¿ÎªÈ«Á÷Á¿µÄ25%£¬ÉÏÊöÀýÔòΪ340/4=85 m3/h¡£
µ¥Ò»³ôÑõͶ¼ÓÁ¿£ºD=qx¡¤Í¶¼ÓÁ¿£¬,Ͷ¼ÓÁ¿0.8mg/l£¬ÔòD= 68¿Ë/Сʱ¡£
¿¼Âǵ½×ÏÍâ¹â´ß»¯µÄ×÷Óã¬Êµ¼ÊµÄ³ôÑõͶ¼ÓÁ¿Îª68X50£¥£½34¿Ë/Сʱ£¨¿ÉÑ¡Ôñ40g/hµÄ³ôÑõ·¢ÉúÆ÷һ̨¼´¿É£©¡£
×¢£º³ôÑõͶ¼ÓÁ¿´óСµÄÑ¡Ôñ±ØÐ뿼ÂÇ»ìºÏϵͳµÄ»ìºÏЧÂʺó²ÅÄܾö¶¨£¬Èç¹û»ìºÏϵͳ»ìºÏЧÂʵͣ¬¾ÍÒªÏàÓ¦²ÉÓøßÊýÖµµÄ³ôÑõͶ¼ÓÁ¿¡£Ð§Âʸ߿ÉÒÔµÍÊýÖµ³ôÑõͶ¼ÓÁ¿¡£
d) ³ôÑõͶ¼Ó·½Ê½£º
±ê×¼ÒªÇó¸ºÑ¹Í¶¼Ó£¬Ò»°ã²ÉÓÃÉäÁ÷»òÆøÒº»ìºÏ±ÃÎüÈë·¨, ʵ¼ù±íÃ÷ÆøÒº»ìºÏ±Ã»ìºÏЧÂʿɸߴï80£¥×óÓÒ£¬Òò´Ë±¾·½°¸²ÉÓÃÆøÒº»ìºÏ±Ã½øÐгôÑõÓëË®µÄ»ìºÏ¡£
e) ×ÏÍâÏßµÄÑ¡Ôñ
×ÏÍâÏßÏû¶¾É豸¿É¸ù¾Ý·ÖÁ÷Á¿Ë®Á¿ÂÔ·Å´óһЩ£¬Ñ¡È¡±ê×¼É豸¼´¿É¡£´ËÀý¿ÉÑ¡ÓÃ100t/hµÄ×ÏÍâÏßÉ豸£¬¹¦ÂÊ700W¡£
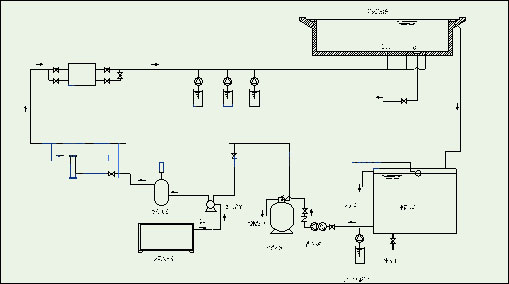
6¡¢ ¹¤ÒÕÁ÷³Ìͼ
![]() |
±±¾©Í¬Áָ߿ƿƼ¼ÓÐÏÞÔðÈι«Ë¾¶àÄê´ÓʳôÑõ¼¼Êõ¿ª·¢ºÍÑо¿£¬³É¹¦Îª¶à¸öÓ¾³ØÍê³ÉÏû¶¾·½°¸¡£µÃµ½·Ç³£ºÃµÄЧ¹û¡£
½áÂÛ£º
1¡¢³ôÑõ¡ª¹â´ß»¯ÏµÍ³¶ÔÓÎÓ¾³ØË®µÄÏû¶¾Ð§ÂÊ´óÓÚµ¥¶ÀʹÓóôÑõ»ò×ÏÍâÏß,¾ßÓй㷺µÄÍÆ¹ã¼ÛÖµ¡£
2¡¢³ôÑõ¡ª¹â´ß»¯ÏµÍ³½µµÍÁËÓÎÓ¾³ØµÄÏû¶¾³É±¾£¬Ïû¶¾ÏµÍ³Ìå»ýС£¬°²×°¡¢²Ù×÷¡¢Î¬»¤¼òµ¥·½±ã¡£
3¡¢³ôÑõÓë×ÏÍâÏßÏà½áºÏµÄ¼¼Êõ¾ßÓÐÁ¼ºÃµÄÑо¿¿ª·¢¼ÛÖµºÍ¹ãÀ«µÄÓ¦ÓÃǰ¾°















