一、引言
目前,我国大多数污水处理控制系统自动化水平不高、安全性低、管理不当,效率普遍低于世界标准。污水处理系统中的曝气过程控制、数据通讯和监控管理是急需解决的主要问题。中国污水处理自控系统相对落后,污水处理成本居高不下,排放的处理过的污水的水质不稳定,所以如何建立有效的自控系统,优化运行效果,减少运行费用,具有重要意义。
针对目前高速公路服务区污水处理效率较低,自动化程度不高,人力成本较高等问题,正航公司和江苏某研究所联合对服务区污水处理系统进行改造,并向全省的高速公路服务区推广。
二、工艺流程
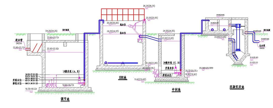
如上图所示,污水由隔油池和化粪池通过进水管,依次经过粗格栅、细格栅,然后进入调节池,由1#提升泵提升至SBR反应池进行曝气生物处理,SBR周期运行,一周期共8小时,其中包括4个阶段(①进水阶段,t=1.0h;②曝气阶段,t=5.0h;③静置阶段t=1.0h;④滗水器排水阶段,t=1.0h)。SBR出水进入中间池再由2#提升泵提升至混凝池,在混凝池由加药泵添加混凝剂,混合进入沉淀池,上清液出水排入边沟。
其中,SBR池和混凝池、沉淀池,均设排泥管,并各设一电动排泥阀,由污泥泵进行定期排泥,排泥进入污泥池,人工对污泥池进行定期外排。
如上图所示,污水由隔油池和化粪池通过进水管,依次经过粗格栅、细格栅,然后进入调节池,由1#提升泵提升至SBR反应池进行曝气生物处理,SBR周期运行,一周期共8小时,其中包括4个阶段(①进水阶段,t=1.0h;②曝气阶段,t=5.0h;③静置阶段t=1.0h;④滗水器排水阶段,t=1.0h)。SBR出水进入中间池再由2#提升泵提升至混凝池,在混凝池由加药泵添加混凝剂,混合进入沉淀池,上清液出水排入边沟。
其中,SBR池和混凝池、沉淀池,均设排泥管,并各设一电动排泥阀,由污泥泵进行定期排泥,排泥进入污泥池,人工对污泥池进行定期外排。
三、控制要求
(1)隔油池控制
配置超声波液位差测量仪,如果隔油池中,测量值超过设定值警报,表明隔油池管道已被堵塞,提醒工作人员需要人工疏通隔油池。
(2)调节池1#提升泵的控制
当到达进水时刻,调节池中检测水位低于启动水位时,电动水阀开启,1#提升泵开泵运作,水位降低到停泵水位时,1#提升泵停止运作。
(3)SBR反应池的控制
周期运转的SBR反应池,每周期分4阶段:①进水阶段,t=1.0h;②曝气阶段,t=5.0h;③静置阶段t=1.0h;④滗水器排水阶段,t=1.0h。其中,
①进水阶段控制:进水电动阀开启,如调节池1#提升机组控制;
②曝气阶段控制:主要是根据进水量,来控制曝气量,通过风机的恒压变频来实现风机流量的变化。
进水阶段,调节池中超声波液位差仪把数值传入系统,根据显示的液位来控制曝气阶段风机的变频运转。
③静置阶段控制:曝气运转5.0h,即停止曝气,开始静置,静置时间控制t=1.0h。
④滗水器滗水阶段控制:静置1.0h后,滗水器阀门启动,开始滗水。直至水位达到设定水位时,滗水关闭,且时间控制为1.0h,1.0h时间一到,即进入下一周期,开始1#提升泵进水。
(4)中间池2#泵的控制和加药泵的控制
每天24小时不间断运行,只要2#泵运行,加药泵就运行,2#泵一停,加药泵即停,即加药泵和2#提升机组是联机操作的。
当中间池显示水位低于最低水位设定值时,2#提升泵和加药泵停止。
(5)排污系统控制
污泥主要是来自SBR池、混凝池及沉淀池,通过设定时间定时进行排污。
四、控制系统构成
本系统中共有模拟量输入5路,分别是隔油池、调节池、中间池配置的超声波液位差测量仪表,SBR反应池、污泥池配置的污泥界面计。模拟量输出两路,分别是1#、2#变频器频率。开关量输入12个,分别为1#提升泵(一用一备)故障,2#提升泵(一用一备)故障,1#、2#风机故障,1#、2#变频器故障,加药泵故障,1#、2#、3#电动排污泵故障。数字量输出13个,分别为1#提升泵(一用一备)运行,2#提升泵(一用一备)运行,1#、2#风机运行,1#、2#变频器运行,加药泵运行,1#、2#、3#电动排污泵运行,故障报警。模拟量采集的各项参数、用户设定的各项参数、手动/自动切换、自动启动/停止以及各设备独立启动/停止由触摸屏显示、设定。
采用:CPU224XP一个,数字量输出模块EM222-R8一个,模拟量输入输出模块EM235一个以及7寸触摸屏一个。
五、系统实现
曝气阶段控制,通过模拟量模块读取超声波液位差仪的反馈,将电流信号4-20mA转换为相对应的液位值,并在触摸屏上显示出来。
根据超声波液位差仪反馈的信号,PLC通过改变模拟量输出的值,改变风机变频器的频率,从而更好地节约了能源,提高了效验。
在定时控制中,由于定时时间较长,PLC内部定时器无法完成这一时间定时,则通过计数器与定时器的配合使用,设定较长时间的定时,完成控制要求。
根据污水处理的工艺流程以及控制要求,画出顺序流程图,通过顺序控制指令S,将污水处理的各个工艺流程步骤有效地衔接在一起,完成所需的控制要求。
程序中同时设定了手动和自动功能,方便设备保养,调试或故障时,更好地维护系统,保证系统的可靠运行。。
通过实时监控各水池的液位,自动控制相应水泵的启停。通过时间设定,定时自动完成水泵切换,泥水排放、间歇暴气等操作,从而高效、节能、环保地完成污水处理工作。













