工程结构中的受弯杆件。梁通常水平设置,但有时也斜向设置以满足使用要求,例如楼梯梁。梁的截面尺寸小于它的跨度,截面高度与跨度之比一般为1/8~1/16,预应力混凝土梁的高跨比甚至小到1/30。高跨比大于1/4的梁称为深梁。梁的截面高度通常大于截面的宽度。但因工程需要,梁宽大于梁高时,称扁梁;梁高沿轴线变化时,称变截面梁。梁在各类工程结构中都有广泛的应用,例如房屋建筑中的楼盖、屋盖、吊车梁、基础梁;各类桥梁的桥面系;各种贮液池的顶盖和海洋平台等。

分类

梁按截面形式分为矩形梁、T形梁、倒T形梁、L形梁、Z形梁、工字梁、槽形梁和箱形梁、空腹梁、迭合梁等。按所用材料分为钢梁、钢筋混凝土梁、预应力混凝土梁、木梁以及钢与混凝土组成的组合梁等。按梁的常见支承方式分为:

简支梁

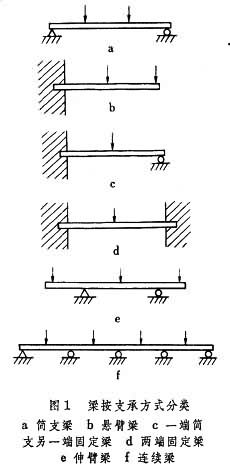
梁的两端搁置在支座上,支座约束两端使不产生垂直位移,但可自由水平转动。为了防止整根梁产生水平移动,同时又要满足因温度变化时能自由伸缩,在其中一个支座处加以水平约束,称为铰支座;另一支座处不加水平约束称为滚动支座(图1a)。

图 悬臂梁

梁的一端固定在支座处,使该端头不能转动,不能发生水平和垂直位移,称为固定支座。另一端可以自由移动和转动,称为自由端。这种梁的最大弯矩和剪力同时产生在固定支座边缘处(图1b)。

将简支梁的支座向跨中移动,使梁的一端或两端挑出一部分,形成悬臂,也称伸臂梁;其自由端可以转动和移动(图1e)。

一端简支另一端固定梁

在悬臂梁的自由端加设滚动支座,便形成这种支承方式的梁(图1c)。

两端固定梁

梁的两端都是固定支座(图1d)。

连续梁

具有两个以上支座的梁。梁由于在中间支座处受到一定程度的约束,和具有同样尺寸和跨度的简支梁比,能承受较大的荷载(图1f)。

受力特点

梁的受力特点与其在结构中所处的位置及所受荷载的情况有关。如在平面楼盖结构中(图2),纵向的梁一般只承受由板传来的分布荷载,称为次梁;而横向的梁除承受由次梁传来的集中荷载外,还要承受由板直接传来的分布荷载,因此称为主梁。

图

在工程结构中最常用到的梁都是具有对称轴的等截面梁。如竖向荷载所在平面与梁的纵对称面相一致,梁内只产生弯矩和剪力,否则还要产生扭矩,如雨篷梁、楼盖边梁。如荷载所在平面系与梁的纵对称面相斜交(如斜放的檩条),或承受竖向荷载及水平荷载的共同作用(如墙架结构中的横梁或箱形基础顶盖和底板的横梁),梁便处于双向受弯状态,甚至还同时受扭或受轴向力的作用。

计算要点

(1)根据荷载的性质和最不利的荷载组合进行计算。对一般吊车荷载和其他振动或冲击作用,可化为乘以动力系数的等效静荷载进行计算;但对于直接承受较大振动作用的梁,则需按动态作用进行动力计算。

(2)图1a、b、e所示各梁在其支座处的3个未知反力(滚动支座处1个,铰支座处2个,固定支座处3个)可以由平面力系的3个静力平衡方程计算求得(见静力平衡原理),故统称为静定梁。这种梁在支座反力求出以后,各个截面的内力(剪力和弯矩)便可由截面一边的脱离体的平衡条件计算出来。

(3)图1c、d、f所示各梁的支座未知反力都在 3个以上,仅由3个静力平衡方程不能求出反力和所需截面内力,故统称为超静定梁。这种梁在计算时必须考虑杆件的变形。并可在内力求出后考虑塑性内力重分布予以适当调整。

(4)由各种材料制成的梁均应进行抗弯、抗剪、抗扭强度计算和挠度验算。而钢组合梁和侧向刚度较差并在支座间的长度上也没有侧向支承的工字形型钢梁或槽形型钢梁,还必须进行整体稳定性验算;预应力混凝土梁和使用上不允许出现裂缝的钢筋混凝土梁,还应进行抗裂度验算;使用上允许出现裂缝的钢筋混凝土梁和部分预应力混凝土梁,还应进行裂缝宽度验算;直接承受中、重级工作制吊车荷载的吊车梁,还应进行疲劳强度计算。

(5)对于深梁,平截面假定不适用,需按弹性力学方法计算。

参考文章